
Location | Houston, Texas |
---|---|
Tags | Residential |
Status | Complete |
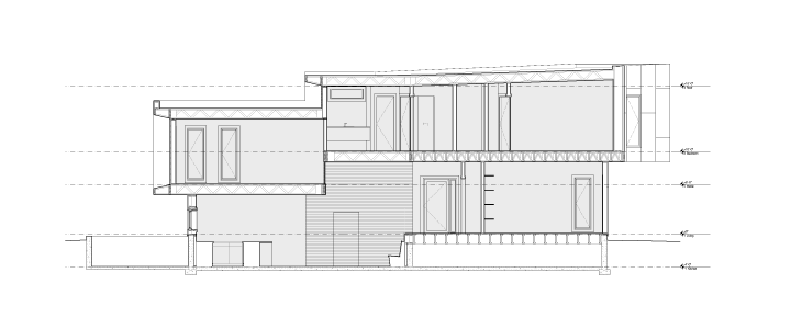
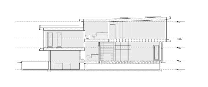
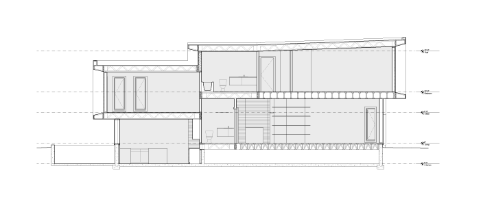
Based in Houston, Texas, Hometta is a collaborative of designers, architects, builders, writers and editors who have banded together to rethink and improve the way residential architecture is designed today. Crank House takes a simple stacked program and shifts both the living and sleeping areas to create a porch on the entry level, and a small roof deck for the uppermost floor.
The house also challenges the idea of a siteless prototype, which is typically designed for a flat terrain. In this case, the house uses half levels, giving it the possibility of being constructed on a sloped site. Alternately, it can be grounded on a flat site with the kitchen sunken a half level into the earth and opening onto a private court for reading, al fresco dining, or entertaining.