Location United Arab Emirates
Tags Residential
Status Ongoing

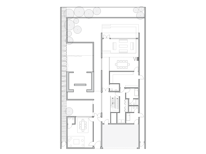
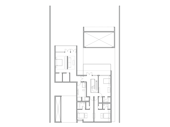
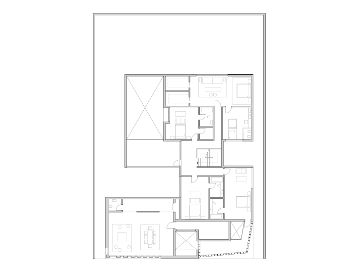
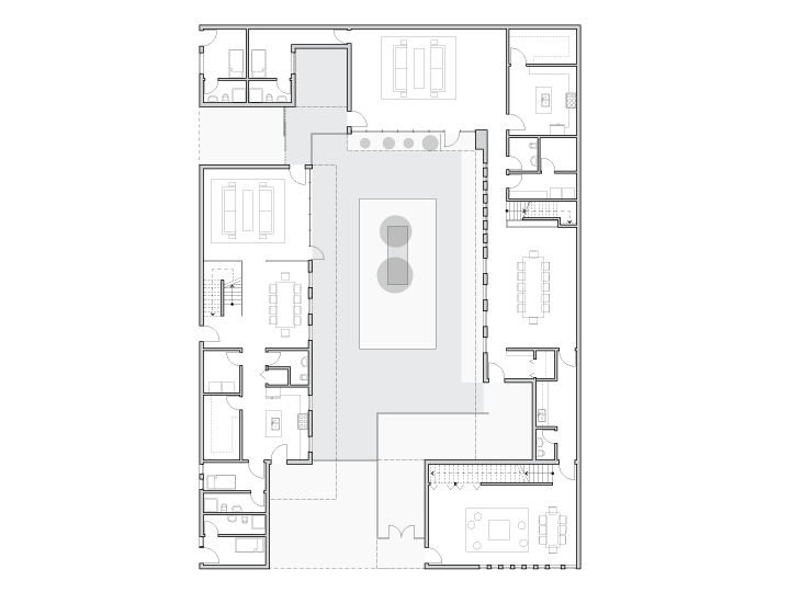
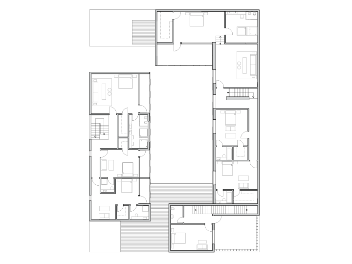
As part of our ongoing research in the United Arab Emirates, these three prototypes investigate an emerging typology in the region—the individual plot with a high degree of privacy. This housing typology requires a fairly hermetic exterior, while a strategic deployment of screens, internal openings, and light scoops maintain access to light, air, and the environment.

  • Villa Prototypes
  • Villa Prototypes
  • Villa Prototypes
  • Villa Prototypes
  • Villa Prototypes
  • Villa Prototypes
  • Villa Prototypes
  • Villa Prototypes
  • Villa Prototypes
  • Villa Prototypes
  • Villa Prototypes
  • Villa Prototypes
  • Villa Prototypes