
Client | Mubadala Real Estate |
---|---|
Location | Al Maryah Island, UAE |
Tags | Cultural |
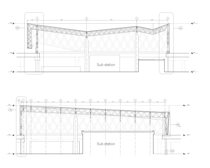
Similar to Chicago, Al Maryah Island has two-tiered circulation underneath the city proper. The lower level, dedicated to infrastructure, is characterized by several openings to the ground above. Each opening hosts a sub-station and its surrounding utility screen. The Krinkle proposes that one of these utilitarian object obtains an active urban character. Navigating different pedestrian and environmental conditions on each side of the structure, the screen steps and deforms to become lower where needed. The proposal also includes an installation wall that will provide opportunities for interactive media art along the most public face of the structure.